3LDK中心 「ヴェレーナ日吉」 7月12日(土)より マンションギャラリーオープン
都心直結、見晴らしのいい人生を楽しむリバーサイドレジデンス
大和地所レジデンス株式会社(東京都港区、代表取締役社長:下村俊二)は、神奈川県横浜市港北区において、新築分譲マンション「ヴェレーナ日吉」のマンションギャラリーを2025年7月12日(土)よりオープンすることをお知らせいたします。<場所:横浜駅西口 常設統合マンションギャラリー> 本物件は、東急東横線「日吉」駅から徒歩圏、渋谷駅や横浜駅へ直通の快適アクセスを実現するロケーションに誕生するレジデンスです。リバーサイドに広がる開放的な立地に、全42邸でルーフバルコニー付住戸や1階オープンエアリビング住戸など、20タイプバリエーションの多彩なプランを展開し、都心の利便性と自然との共生を両立した住まいを提供します。

■本物件の特徴
(1)都心直結の軽快なアクセスと立地環境
(2)家族の毎日に寄り添う、暮らしやすさと商業施設の集積
(3)オープンエアリビング・ルーフバルコニーなど、開放性と多様性の住戸設計
(4)ペットと暮らせる心地よい環境
(1)都心直結の軽快なアクセスと立地環境

本物件は、東急東横線・目黒線「日吉」駅より徒歩圏に位置し、「渋谷」駅へ直通23分、「横浜」駅へは直通11分。さらに東急新横浜線や横浜市営地下鉄グリーンラインも利用可能で、4路線アクセスの利便性を備えています。駅周辺には「日吉東急アベニュー」や5つの商店街が集まり、生活利便と交通機能を高次元で融合したロケーションです。
また、リバーサイドに広がる開放感ある眺望は、都心近郊では稀有な環境。周辺は風致地区ならではの落ち着きと豊かな緑に囲まれ、利便性と自然の調和を実感いただけます。
(2)家族の毎日に寄り添う、暮らしやすさと商業施設の集積
「ヴェレーナ日吉」は、住宅街として成熟した港北区日吉エリアに位置し、教育施設・公園・医療・商業が徒歩圏に集約されています。日吉東急アベニューをはじめとする駅直結の複合商業施設や、放射状に広がる5つの商店街が生活利便性を支え、地域に根差した穏やかな暮らしを演出します。また、ペットと暮らせる仕様(犬猫2匹まで)や、24時間ゴミ出し可能な共用設備など、忙しい共働き世帯にも優しい設計が特長です。

本物件は全42邸、2LDK〜3LDK で55㎡台~80㎡台・20タイプバリエーションの多彩なプランを展開。ルーフバルコニー付住戸、また1Fにはオープンエアリビング住戸などを用意し、家族が永く、心地よく暮らし続けるために、空間の広がりと用途の多様性を追求しました。また2棟構成の配棟計画により、角住戸・3面採光住戸を多く設けたプランニングを実現し、明るく開放感あふれる住空間を設計しました。
(4)暮らし心地を高めるプラスアルファの心地よい空間
回遊性が高く、左右から出入りできるため作業しやすいアイランドキッチンや、リビング・ダイニングと隣り合う洋室には引込戸を採用。またビッグウォークインクロゼットやシューズインクロゼット付住戸など多彩なプランもご用意し、ペットも2匹まで飼育可能な多様なライフスタイルに対応する住まいを提供いたします。

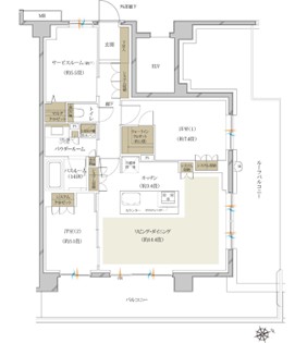
Nr type 2LDK+S(納戸)+R+W
専有面積/80.32㎡
バルコニー面積/19.77㎡
ルーフバルコニー面積/28.08㎡
■本物件概要
所在地 神奈川県横浜市港北区日吉三丁目1052番6(地番)
交通 東急東横線・目黒線・東急新横浜線・横浜市営地下鉄グリーンライン「日吉」駅徒歩18分
敷地面積 1,449.22㎡
建築延床面積 3,375.54㎡
構造・規模 鉄筋コンクリート造、地上7階建
総戸数 42戸(他に管理室1戸)
間取り 2LDK~3LDK
専有面積 55.62㎡~80.32㎡
販売価格 未定
販売予定時期 2025年7月
竣工予定時期 2027年2月(予定)
引渡し可能年月 2027年3月(予定)
売主 大和地所レジデンス株式会社
施工 大洋建設株式会社
管理会社 大和地所コミュニティライフ株式会社
物件HP https://www.daiwa-r.co.jp/sp/hiyoshi
■現地案内図

■マンションギャラリー案内図

企業担当者の連絡先を閲覧するには
会員登録を行い、ログインしてください。
